

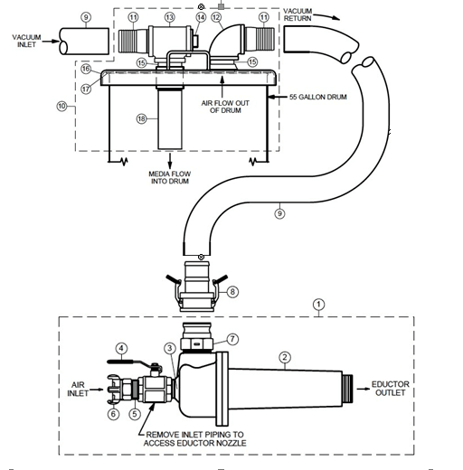
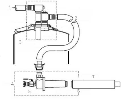
Eductor
Los sistemas portátiles para aspiración de materiales en procesos de granallado diseñados y fabricados por Axxiom Manufacturing Schmidt se caracterizan por su sencillez, facilidad de instalación, bajo costo y la comodidad para transportarlo de un lugar a otro.
Requiere únicamente de una fuente de aire presurizado y un recipiente donde se desea almacenar el material que se recoge.


